To reserve any of the Duffield Engineering outdoor spaces, log into the Academic and Event Scheduling Website and complete the Event Request Form. More than one space may be reserved at a time if an event covers multiples areas.
Page Contents
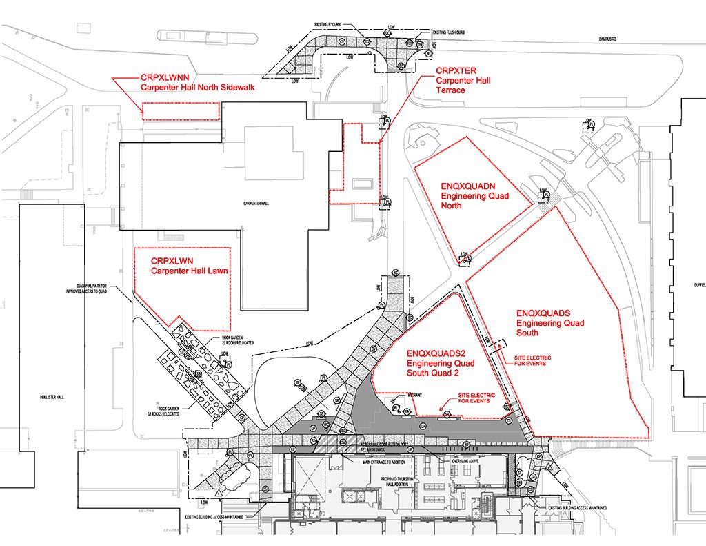
Outdoor Spaces Available to Reserve on the Pew Engineering Quadrangle

Visit the University Scheduling System event form for reserving the Duffield Hall Atrium or Lacroute Plaza.
Use of Duffield Engineering outdoor spaces is limited to Cornell University affiliated groups. Although reservations are on a first-come, first-served basis, priority will be given in the following order:
- Duffield Engineering central college and department events
- Duffield Engineering student group events
- Other Cornell University department events
- Other Cornell registered student group events
Image long description
The Pew Engineering Quadrangle at Cornell University offers several reservable outdoor spaces surrounded by key engineering buildings. Starting in the northwest, Olin Lawn is a large green space near Olin Hall. To the south is the Carpenter Hall North Sidewalk space, and on the southwest side is the Carpenter Hall Lawn, adjacent to Carpenter Hall, with the Carpenter Terrace nearby as a paved area suitable for gatherings. In the central part of the quadrangle are, Engineering Quad North, Engineering Quad South and Engineering Quad South 2, three green areas divided by intersecting paths. Lastly, on the southeast side is Upson Lawn, a rectangular lawn near Upson Hall. These spaces provide ample room for events and gatherings within a scenic, campus environment.